Giới thiệu
Đội ngũ
Dự án
Nhà ở dân dụng
Nhà cấp 4
Nhà 2 tầng
Nhà 3 tầng
Biệt thự
Công trình công cộng
Nhà máy, nhà tiền chế
Coffee shop
Báo giá
Báo giá xây nhà trọn gói
Báo giá hoàn thiện
Báo giá thiết kế
Dịch vụ
Thiết kế kiến trúc
Thiết kế nội thất
Thiết kế sân vườn
Liên hệ
Giới thiệu
Đội ngũ
Dự án
Nhà ở dân dụng
Nhà cấp 4
Nhà 2 tầng
Nhà 3 tầng
Biệt thự
Công trình công cộng
Nhà máy, nhà tiền chế
Coffee shop
Báo giá
Báo giá xây nhà trọn gói
Báo giá hoàn thiện
Báo giá thiết kế
Dịch vụ
Thiết kế kiến trúc
Thiết kế nội thất
Thiết kế sân vườn
Liên hệ
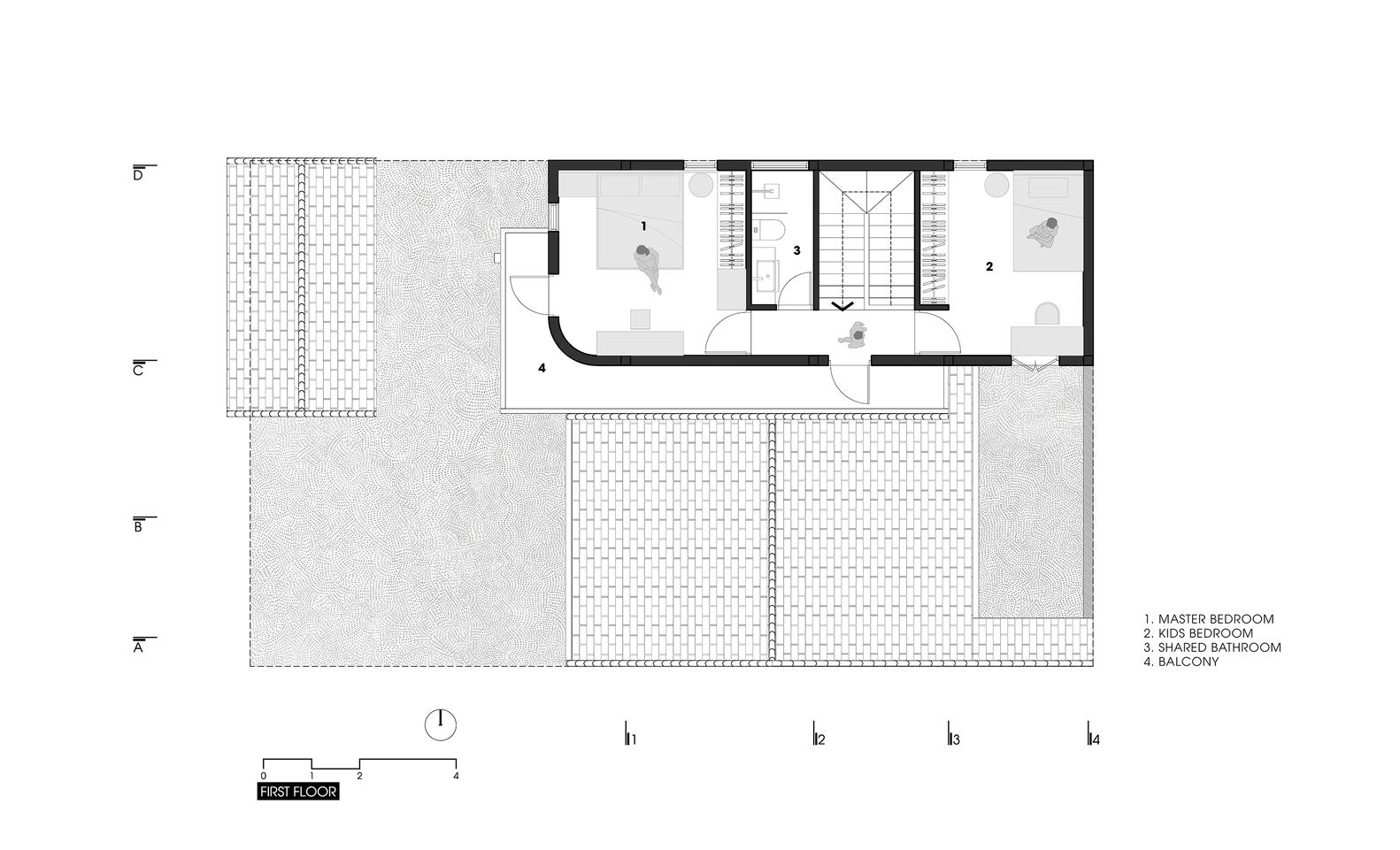
Nhà 2 tầng mang phong cách tối giản không gian
Trang chủ
Dịch vụ
Thiết kế kiến trúc
Nhà 2 tầng mang phong cách tối giản không gian
↑